
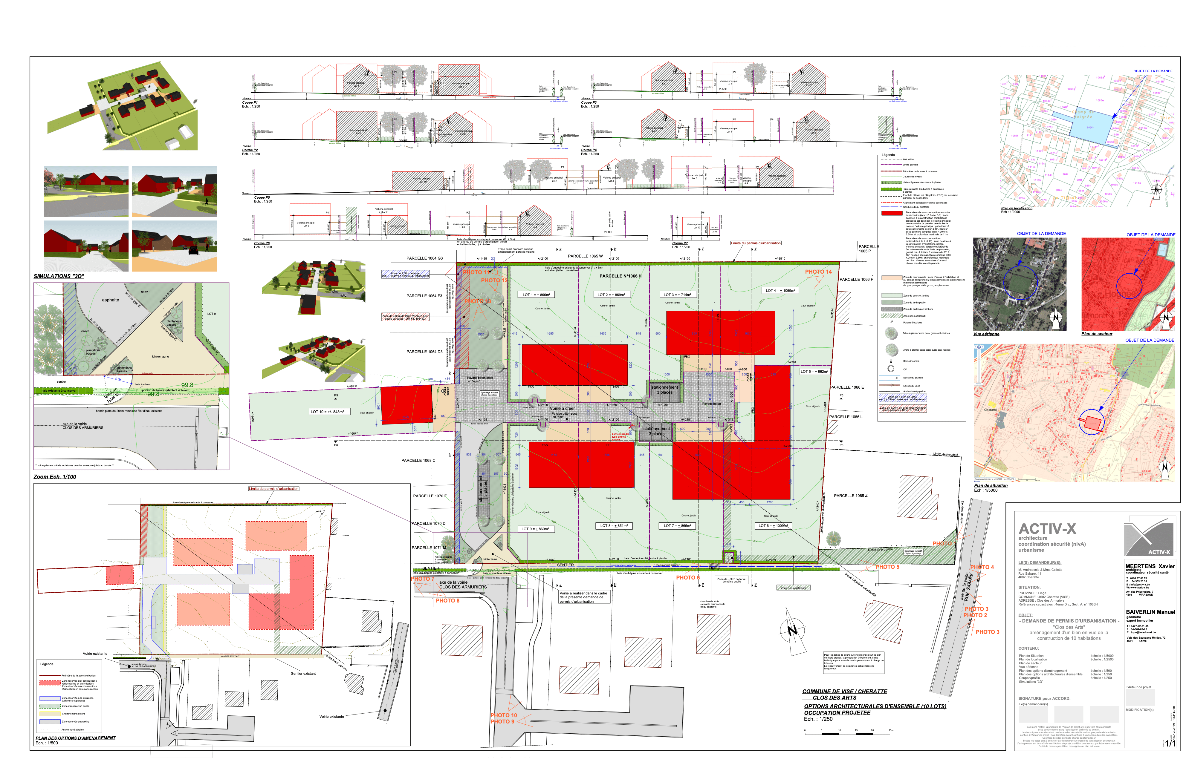
Chacune de nos dix parcelles, de 662 m² à 1059 m², a été pensée pour préserver votre intimité et vous offrir un espace généreux pour une maison quatre façades. Entièrement viabilisées et prêtes à bâtir dès le premier trimestre 2025, elles n'attendent que votre signature.
Imaginez un lieu où votre rêve de maison prend forme, en parfaite harmonie avec un environnement d'exception. Au Clos des Arts, chaque jour est une invitation à vivre selon vos inspirations, sur une parcelle spacieuse au cœur d'un domaine où la nature est reine. C'est la liberté de créer, sublimée par la qualité d'un cadre de vie pensé pour votre sérénité.



.jpg)
Et lorsque l'appel de la ville se fait sentir, la richesse culturelle et festive de Liège, Visé, Maastricht ou Aachen s'offre à vous en un clin d'œil. Expositions, concerts, événements... Le Clos des Arts est le point de départ idéal pour nourrir votre esprit et célébrer la vie, en toute simplicité.

Une promenade vivifiante au cœur des Bois de la Julienne, le souffle de l'aventure équestre au Manège de Cheratte, ou l'énergie d'une partie de tennis entre amis sur des installations modernes. Ces plaisirs simples et essentiels tissent la trame d'une vie active et sereine, au pas de votre porte.
Situé à Cheratte, ce lieu d'exception vous place à quelques kilomètres de Liège, Maastricht (NL) et Aachen (DE). Profitez d'un accès rapide aux autoroutes E25 et E42, et rejoignez les gares et aéroports internationaux (CRL Airport) en moins d'une heure. Bien plus qu'un lieu de vie, Le Clos des Arts est une porte ouverte sur les grandes capitales européennes.